Listing Provided Courtesy of Silvercreek Realty Group at 208-377-0422This thoughtfully designed new construction home stands apart from typical production builds, crafted by a veteran custom home builder with a reputation for quality, precision, and long-term durability. Every detail reflects intentional design and premium craftsmanship, not shortcuts. The spacious, open-concept layout offers plenty of room to live, entertain, and grow, with upgraded finishes throughout that you simply won’t find in standard builder homes. From high-quality materials to custom touches, this home was built with both comfort and performance in mind. A standout feature is the oversized, giant garage—perfect for multiple vehicles, a workshop, storage, or recreational toys—offering flexibility that’s hard to come by. Generous living spaces, well-proportioned bedrooms, and smart flow make this home as functional as it is impressive. Built with pride, experience, and attention to detail, this is a rare opportunity to own a truly custom-quality home that delivers upgrades, space, and craftsmanship far beyond the norm. Ideal for buyers seeking something better than builder-grade and designed to last.
Current real estate data for Single Family in Nampa as of Apr 24, 2026
926
Single Family Listed
70
Avg DOM
258
Avg $ / SqFt
$534,328
Avg List Price
Property Details
Price:
$879,500
MLS #:
98970806
Status:
Pending
Beds:
3
Baths:
2
Type:
Single Family
Subtype:
Single Family Residence
Subdivision:
Osprey Estates
Neighborhood:
nampasouth861260
Listed Date:
Jan 3, 2026
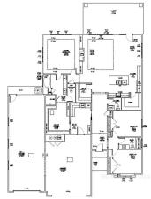
Finished Sq Ft:
2,512
Total Sq Ft:
2,512
Lot Size:
20,473 sqft / 0.47 acres (approx)
Year Built:
2025
Schools
School District:
Nampa School District #131
Elementary School:
Ronald Reagan
Middle School:
East Valley Mid
High School:
Columbia
Interior
Above Grade Finished Area
2512
Appliances
Gas Water Heater, Tank Water Heater, Dishwasher, Disposal, Microwave, Oven/Range Freestanding, Refrigerator, Gas Range
Cooling
Central Air
Flooring
Tile, Carpet, Engineered Vinyl Plank
Heating
Forced Air, Natural Gas
Interior Features
Sink, Bath-Master, Bed-Master Main Level, Den/Office, Family Room, Double Vanity, Central Vacuum Plumbed, Walk-In Closet(s), Pantry, Kitchen Island, Quartz Counters
Levels
One
Main Level Bathrooms
2
Main Level Bedrooms
3
Exterior
Accessibility Features
Accessible Hallway(s)
Attached Garage YN
1
Construction Materials
Concrete, Frame, Stone, Stucco, HardiPlank Type
Covered Spaces
4
Fencing
Full, Metal
Garage Spaces
4
Lot Features
10000 SF – .49 AC, Sidewalks, Cul-De-Sac, Auto Sprinkler System, Full Sprinkler System, Pressurized Irrigation Sprinkler System
New Construction YN
1
Open Parking YN
1
Parking Features
RV/Boat, Attached, Finished Driveway
Parking Spots
4
Parking Total
4
Patio And Porch Features
Covered Patio/Deck
Roof
Architectural Style
Financial
HOA Fee
$725
HOA Fee Frequency
Annually
Tax Year
2024
Map
Contact Us
Mortgage Calculator
Community
- Address7195 E Merlin Hawk Ct Nampa ID
- SubdivisionOsprey Estates
- CityNampa
- CountyCanyon
- Zip Code83686
Subdivisions in Nampa
- 0 Not Applic.
- Aberdeen Springs
- Adams Ridge
- Aladdin Terrace
- Almond Cove
- Arbor
- Arbor Landing
- Archer Pointe
- Arlington Add
- Asbury Park
- Astoria Park
- Avondale Place
- Barberry Estates Nampa
- Bayhill Sub
- Bella Commons
- Belle Aire Acres
- Black Hawk
- Blackhawk
- Blackhawk Lake
- Bodle Farms
- Bonnie Brae
- Bowling Green
- Bowman
- Brandt Land. E
- Brandts Landing
- Brassy Cove
- Briarcrest Est
- Bridgewater Estate
- Brittania Heights
- Brookdale Estates
- Brookwood Estates Nampa
- Brownstone Estates
- Calvary Springs
- Camelot Sub Can
- Canyon Creek
- Carriage Hill
- Carriage Hill North
- Carriage Hill West
- Castle Peak
- Charlotte Meadows
- Cherry Creek Es
- Cherry Grove
- Cherry Lane Mea
- Clark Theurer
- Clearsprings
- Colter Bay
- Copper River Basin – Nampa
- Cortland Place
- Cottonwoods
- Country Living
- Country Living Estates
- Coventry Place
- Covey Run
- Crestview
- Crestwood Estates
- Crestwood Sub
- Crystal Lakes
- Crystal Springs Estates
- Dakota Crossing
- Dallan Woods
- Davis Avenue Townhomes
- Deer Sky Ranch
- Diamond Peak Townhomes
- Discoverypointe
- Dovemeadows Can
- Eagle Stream
- East Ridgevue Estates
- El Rancho Verde
- Fairhaven
- Fairview Place
- Falconridge Nampa
- Fall Creek
- Fall River Estates
- Feather Cove
- Foothill Ranch
- Fortin
- Fran Sub
- Franklin Village
- Franklin Village North
- Gem Park Sub
- Glen View Estat
- Goldcrest Est
- Golden Hills Estates
- Granite Basin
- Grant
- Greenbriar Estates
- Greens At Ridgecrest
- Griffith & King
- Griffith Sub
- Grumbling/Fulme
- Happy Valley
- Happy Valley Estates
- Hardwood Estates
- Harmony
- Hartland
- Harvest Creek
- Henry Height Su
- Henrys Place
- Heritage Pointe
- Heron Ridge
- Herron Springs
- Hesse Acres
- Hidden Cove
- Highgrove Estates
- Hill Creek Sub
- Hillside Manor
- Hipwell Estates
- Holsclaw
- Home Acr S Can
- Home Acres
- Horizon Ridge
- Hunters Point – Nampa
- Interstate
- Iowa Meadows Su
- Jacks Place
- Jasper Ridge
- Johnsons
- Juniper Square
- Karcher Estates
- Kensington Place
- KingS Heights
- Kings Road Est
- Kurtz Add
- Lake Grove Sub
- Lakeview Sub 1
- Lava Falls
- Lava Springs
- Leisureville
- Lekeitio Village
- Lexis Creekside
- Lighthouse Estates
- Locust Lane
- Lone Star Ranch
- Lost Creek
- Lost River
- Lotus Springs
- Magnolia Estates
- Maple Leaf
- Maplewood Estat
- Maryland Townho
- Mason Creek Drift
- Mayflower
- Meadow Brook
- Meadow Creek Nampa
- Meadowbrook Par
- Meadowcrest
- Meadowlark Place
- Meadows at Parkridge
- Meriwether Park
- Middle Creek Nampa
- Milliken Height
- Mission Pointe
- Moads Sub
- Monarch
- Morning Dove
- Morning Sun Nampa
- Moss Pointe
- Nampa City Acre
- Nampa Heights
- Nampa Original
- New Karcher Est
- New York Landing
- Newmans Resub
- Non Applicable
- North Fork Ranch
- North Pointe
- Oakhurst Sub
- Oakmont Sub Nampa
- Orchalara Heigh
- Orchard Heights
- Osprey Estates
- Owyhee Estates
- Pallesen Additi
- Palm Estates Su
- Pamelas Garden Estates
- Park Addition
- Park Ridge
- Park Ridge Meadows
- Parkcrest
- Parkcrest Acres
- Peregrine Estates
- Pheasant Meadows
- Pheasant Ridge
- Pony Acres Est
- Poplar Place Su
- Port Meadows
- Quail Cove Sub
- Quail Ridge Est
- R A Warnock Sub
- Raintree Meadows
- Raintree Villag
- RedHawk Ridge
- Reflections Edge
- Ridge Crest Sub
- Ridgevue Estates
- River Meadow
- Robinson Ranche
- Rockwell Village
- Rolling Green
- Roosevelt Add
- Royal Meadows
- Saddle Ridge
- Sagewater
- Salmon Ridge
- Sands Pointe
- Schoen Sub
- Schomburg Place
- Shady Grove
- Shalimar Terrac
- Shamrock Villa
- Sherwood Forest
- Silver Add
- Silver Star
- Silvercrest Est
- Skyview
- Skyview Acres
- Smiths Acreage
- Solano Place
- Sonata Pointe
- Sonata Pointe West
- South Creek
- South Fork Ranch Midland Park Nampa
- Southern Ridge
- Spicewood Nampa
- Spring Hollow Ranch
- Spring Shores
- Springbrook
- Spyglass
- Star Pass Ridge
- Stella’s Point
- Sterling Meadows
- Stiehl Falls
- Stillwater
- Stony Meadows
- Summit Ridge
- Summit Ridge Canyon Co
- Sunny Lane Sub
- Sunny Ridge
- Sunny Ridge Hei
- Sunnyvale
- Sunnyvale West
- Sunrise At Toma
- Sunrise Crossing
- Sunrise Meadows
- Sunset Cove Sub
- Sunset Meadows
- Sunset Oaks
- Sweetwater Glen
- Table Meadows
- Tamarack Point
- Terrace Falls
- The Cottages
- The Ranch
- Togstads
- Torrey Pines
- Trinity Estates
- Trinity Hills Nampa
- Triple Crown
- Valley View
- Vaughn Estate
- Venice
- Verde Hills
- Victory
- Vineyard Point
- Virginia Hills
- Vista Ridge
- Walton Woods
- Waterhouse
- Weatherby Estates
- Wedgwood Estates Nampa
- West Pine
- Westbrook Canyon
- Westminster
- Westview
- Westwood Manor
- Whitney Springs
- Wild Prairie Estates
- Wildflower West
- Wildwood
- Willow Creek
- Wilson Creek
- Wilson Est
- Woodlands #1
- Wright
- Yale Park
Property Summary
- Located in the Osprey Estates subdivision, 7195 E Merlin Hawk Ct Nampa ID is a Single Family for sale in Nampa, ID, 83686. It is listed for $879,500 and features 3 beds, 2 baths, and has approximately 2,512 square feet of living space, and was originally constructed in 2025. The current price per square foot is $350. The average price per square foot for Single Family listings in Nampa is $258. The average listing price for Single Family in Nampa is $534,328. To schedule a showing of MLS#98970806 at 7195 E Merlin Hawk Ct in Nampa, ID, contact your Cardinal Realty of Idaho agent at 208-917-2570.
Similar Listings Nearby
Listing courtesy of Silvercreek Realty Group
Disclaimer: The data relating to real estate for sale on this web site comes in part from the IDX program of the Intermountain Multiple Listing Service. Real estate listings held by brokerage firms other than Cardinal Realty of Idaho are marked with the Intermountain Multiple Listing Service Logo. Detailed information for these types of listings shall include the name of the listing Brokerage. Information provided by IMLS is deemed reliable but not guaranteed. IDX information is provided exclusively for consumers personal, non-commercial use, that it may not be used for any purpose other than to identify prospective properties consumers may be interested in purchasing. IMLS does not assume any liability for missing or inaccurate data. Copyright 2026. Intermountain Multiple Listing Service, Inc. All rights reserved.7195 E Merlin Hawk Ct
Nampa, ID

